足球赌博网站

赌博网站-足球赌博网站 2019年12月3日星期二

无障碍 无障碍 简体| 繁体 长者模式 长者模式

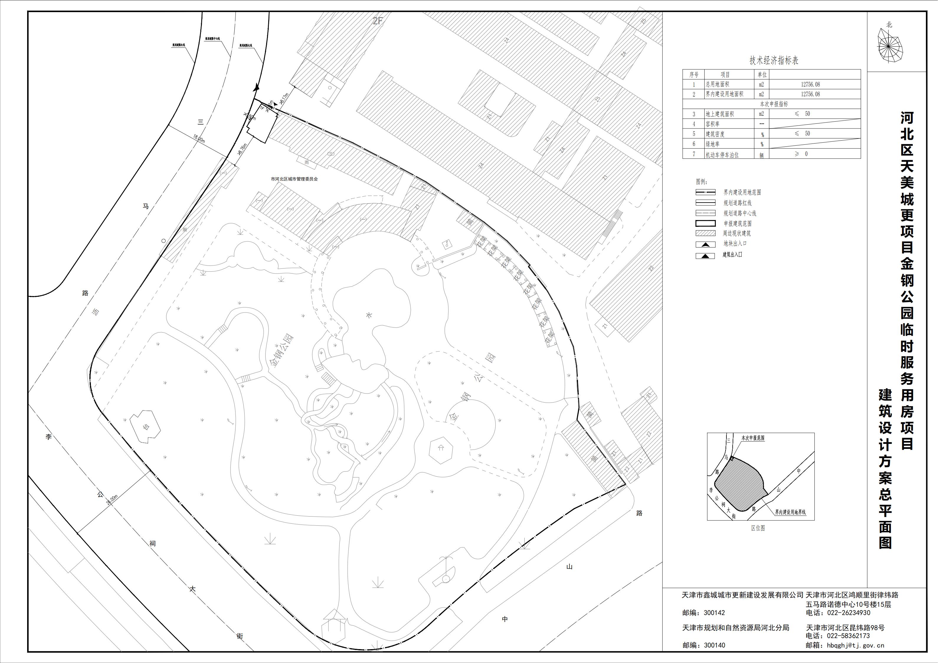
(足球赌博网站 )关于天美城更项目金钢公园临时服务用房项目(临时)建筑设计方案总平面图的公布
来源:天津市规划和自然资源局河北分局 发布时间:2025-06-18 11:18

依据《中华人民共和国城乡规划法》的有关要求,现将关于天美城更项目金钢公园临时服务用房项目(临时)建筑设计方案总平面图进行公布,公布期限为信息发布之日起至建设项目规划验收合格为止。


    通讯地址:足球赌博网站 昆纬路98号

    联系电话:022-58362173

    邮政编码:300140

天津市规划和自然资源局河北分局    

       2025年6月18日             




附件: